
Tipo de HD Europeu Guindaste Sobrevivente Único-viga Elétrica
A ponte rolante europeia de viga única é um equipamento de elevação compacto projetado e fabricado em estrita conformidade com o padrão FEM e DIN, que com tecnologia avançada e design bonito. Dividido em tipo geral e tipo de suspensão, suportando o uso de talha elétrica de padrão europeu, adequado para manuseio de material de oficina e armazém, montagem de precisão de peças grandes e outros locais.
Tipo de HD Europeu Guindaste Sobrevivente Único-viga Elétrica
Descrição breve:
A ponte rolante europeia de viga única é um equipamento de elevação compacto projetado e fabricado em estrita conformidade com o padrão FEM e DIN, que com tecnologia avançada e design bonito. Dividido em tipo geral e tipo de suspensão, suportando o uso de talha elétrica de padrão europeu, adequado para manuseio de material de oficina e armazém, montagem de precisão de peças grandes e outros locais.

Ele poderia amplamente utilizado na fabricação de máquinas, metalurgia, petróleo, petrificação, porto, ferroviário, aviação civil, alimentos, fabricação de papel, construção, oficina de indústrias de eletrônica, armazém e outras situações de manuseio de material, esp. aplicado ao manuseio de material que precisa de posicionamento preciso, componentes grandes precisa situação de montagem.

Imagens detalhadas:

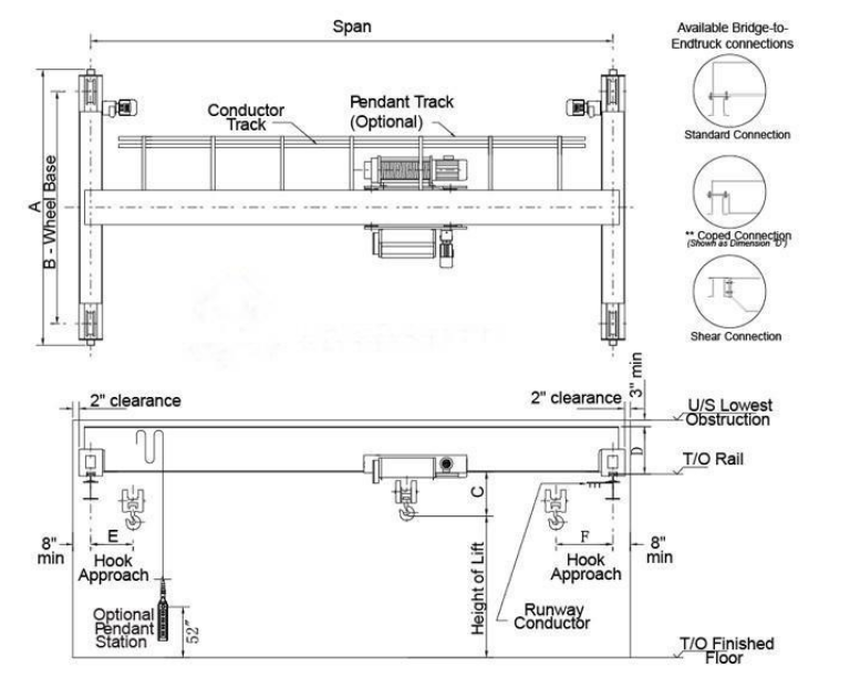
Desenho de esboço:

Parâmetros técnicos:
Período | m | 7,5 | 10,5 | 13,5 | 16,5 | 19,5 | 22,5 | 25,5 |
Capacidade | t | 1 ~ 12,5t | ||||||
Peso total | kg | 1781 ~ 12086 | ||||||
Peso do trole | kg | 405 ~ 740 | ||||||
Max. Carga da roda | kn | 13,5 a 90,94 | ||||||
Trilho de viagem | P24 ~ P43 | |||||||
Velocidade de elevação | m / min | 0,8 / 5 | 0,8 / 5 | 0,8 / 5 | 0,8 / 5 | 0,8 / 5 | 0,8 / 5 | 0,8 / 5 |
Levantamento de peso | m | ≥ 6 | ≥ 6 | ≥ 6 | ≥ 6 | ≥ 6 | ≥ 6 | ≥ 6 |
Potência total do motor | kw | 4,31 | 4,31 | 4,31 | 4,31 | 4,67 | 4,67 | 4,67 |
Velocidade do guindaste | m / min | 3-30 | 3-30 | 3-30 | 3-30 | 3-30 | 3-30 | 3-30 |
Velocidade do carrinho | m / min | 2-20 | 2-20 | 2-20 | 2-20 | 2-20 | 2-20 | 2-20 |
Dever de trabalho | M5 / A5 | |||||||


English
slovenčina
Català
Việt Nam
Indonesia
Français
dansk
Български
русский
Deutsch
türkiye
Srbija jezik (latinica)





